• Home
  • Commercial Kitchen and Workspace Design

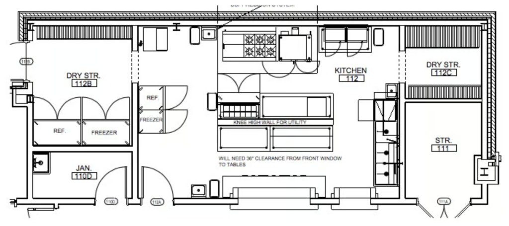
Commercial Kitchen and Workspace Design

Projects of Any Size
Drafting and Facility Layout
Equipment Spec and Construction Support
Custom Fabrication
Equipment Delivery and Install

From designing and drafting work spaces to custom fabricating tables and sinks; from working with your GC, architect and/or MEP to managing your delivery and hauling away the old: we’ll make sure you’re actually happy.